Советуем
В наличии 503У1 Ямные пути
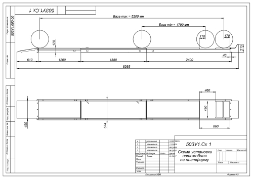
Платформа на смотровую яму предназначена для выполнения работ по измерению и регулировке углов установки колес автомобилей. Имеет регулировки горизонта. Колесная база от 1790 мм до 5200 мм. Габаритные размеры колеи 6265 мм длина и 574 мм ширина (с наездами и упором).
Бренд/Производитель: ПКФ "Автоформат Б"
ТЕХНИЧЕСКИЕ ХАРАКТЕРИСТИКИ
| Минимальная база автомобиля, мм | 1790 | |
| Максимальная база автомобиля, мм | 5200 | |
| Габаритные размеры платформы, мм: | ||
| - длина колеи | 6265 | |
| - ширина каждой колеи | 574 | |
| - высота каждой колеи | 120 | |
| - высота по отбойнику | 215 | |
| Размеры задних сдвижных пластин, мм: | ||
| - длина | 1820 | |
| - ширина | 482 | |
| Размеры площадок-ниш под передние поворотные круги, мм: | ||
| - длина | 860 | |
| - ширина | 490 | |
| - высота | 50 | |
| Размеры направляющих под траверсу, мм: | ||
| - длина | 5410 | |
| - ширина опорной поверхности под ролик траверсы | 30 | |
| Габаритные размеры платформы в транспортном положении, мм: | Место 1 | Место 2 |
| - длина | 2700 | 2605 |
| - ширина | 650 | 650 |
| - высота | 480 | 350 |
| Грузоподъемность, кг | 4000 | |
| Масса платформы, кг | 540 |








