Ожидается
503Д Ямные пути
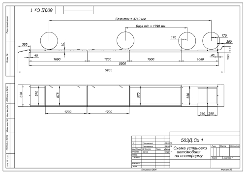
Платформа на смотровую яму предназначена для выполнения работ по измерению и регулировке углов установки колес автомобилей. Требуется ровное бетонное основание, имеет регулировки горизонта. Колесная база от 1790 мм до 4710 мм. Габаритные размеры колеи 5985 мм длина и 630 мм ширина (с наездами и упором).
Бренд/Производитель: ПКФ "Автоформат Б"
ТЕХНИЧЕСКИЕ ХАРАКТЕРИСТИКИ
| Минимальная база автомобиля, мм | 1790 | |
| Максимальная база автомобиля, мм | 4710 | |
| Габаритные размеры платформы, мм: | ||
| - длина колеи | 5985 | |
| - ширина каждой колеи | 630 | |
| - высота каждой колеи | 80 | |
| - высота по отбойнику | 180 | |
| Размеры задних сдвижных пластин, мм: | ||
| - длина | 2х1200 | |
| - ширина | 575 | |
| Размеры площадок-ниш под передние поворотные круги, мм: | ||
| - длина | 1040 | |
| - ширина | 550 | |
| - высота | 50 | |
| Размеры направляющих под траверсу, мм: | ||
| - длина | 5420 | |
| - ширина опорной поверхности под ролик траверсы | 30 | |
| Габаритные размеры платформы в транспортном положении, мм: | Место 1 | |
| - длина | 1900 | |
| - ширина | 710 | |
| - высота | 850 | |
| Грузоподъемность, кг | 4000 | |
| Масса платформы, кг | 590 |




