Подъемник двухстоечный SIVIK (СИВИК) ПГА-4200К, г/п 4,2 т
Бренд/Производитель: SIVIK
Подъемник электрогидравлический. Грузоподъемность 4,2 т. Для помещений с малой высотой потолков. Верхняя синхронизация.
Гидростанция «Oil Sistem» Bosch Rexroth Group, Италия.
Применение специального «гнутого» профиля позволяет добиться высокой жесткости колонн при минимальных размерах и массе.
Удлиненная каретка гарантирует равномерное распределение нагрузки по всей высоте колонны.
Каждый подъемник испытывается с превышением номинальной нагрузки на 25% (статическая) и 15% (динамическая).
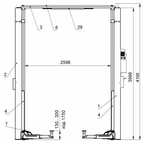
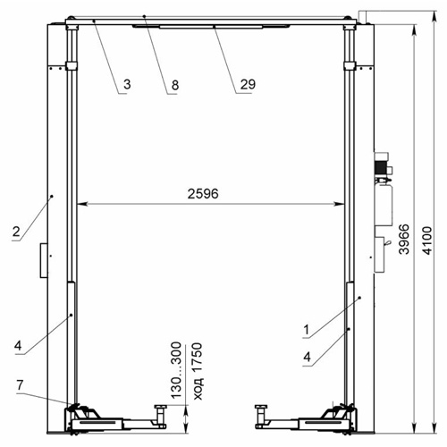
Асимметричное расположение колонн обеспечивает открывание дверей а/м. Благодаря автоматическим стопорным устройствам подхваты подвижны только в крайнем нижнем положении.
Отсутствие нижней связи позволяет легко устанавливать на подъемник любые, в том числе аварийные, а/м.
Безопасное удержание а/м обеспечивается стопорением через каждые 10 см на обеих колоннах.
Не нагруженная тросовая синхронизация исключает перекос при подъеме и обеспечивает плавность хода.
Электрический замок обеспечивает защиту от несанкционированного использования подъемника
Система защиты а/м автоматически прекращает подъем при соприкосновении крыши а/м и страховочной планки.
- Грузоподъемность: 4200, кг
- Высота подъема: 1750, мм
- Расстояние между колонами подъемника: 2596, мм
- Напряжение: 380, Вольт
- Высота подхвата: 110, мм




